Eingepasst
Sanierung und Erweiterung eines Wohnhauses in Hannover-Badenstedt
2022-2024
Das 1959 erbaute und in den 1990ern aufgestockte Reihenhaus im Stadtteil Badenstedt wurde umfassend saniert, an heutige Wohnbedürfnisse angepasst und energetisch ertüchtigt. Das Wohnhaus ist Teil eines größeren, noch weitgehend homogenen Gebäudeensembles und markiert als südlicher Kopfbau den Abschluss einer Zeile aus vier bungalowartigen Reihenhäusern.
Ziel des Entwurfs war es, die architektonische Einheit des Gebäudes in seiner Umgebung zu erhalten und es gleichzeitig umfassend zu modernisieren.
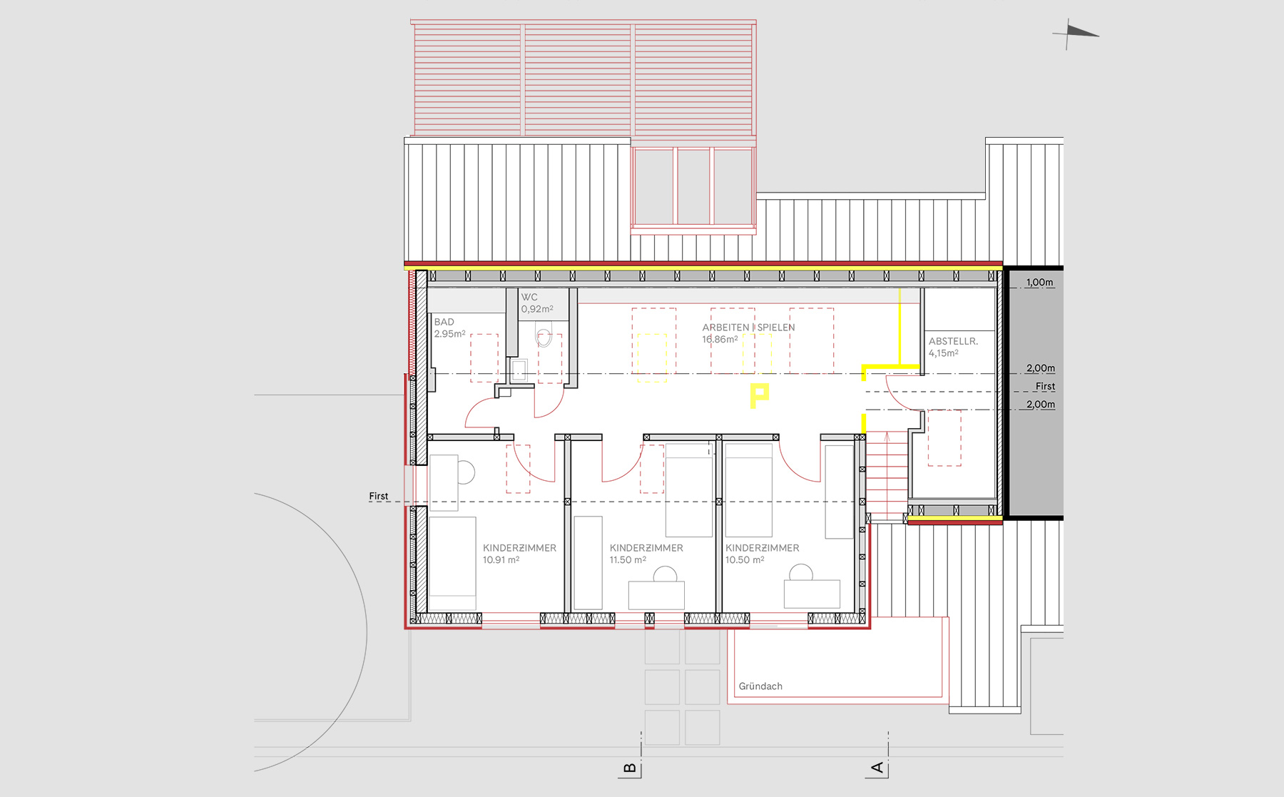
Im Erdgeschoss des Einfamilienhauses wurden die ehemals kleinteiligen Raumzuschnitte zugunsten großzügiger Raumzusammenhänge neu organisiert. Im Zentrum des Hauses ist ein offener Wohn-, Ess- und Kochbereich mit fließenden Übergängen entstanden. Der zum Garten orientierte Essbereich wurde durch eine wintergartenähnliche Erweiterung mit großflächigen Verglasungen ausgestattet, die viel Tageslicht ins Gebäudeinnere bringen und den Innenraum optisch mit dem Außenraum verbinden. Das angrenzende Schlafzimmer erhielt über eine neue Terrassentür direkten Zugang zum Garten sowie ein eigenes Ensuite-Bad. Ergänzt wird das Erdgeschoss durch einen Haustechnikraum, einen Abstellraum und einen neu errichteten, vorgelagerten Windfang mit Gäste-WC, der den Eingangsbereich funktional ordnet und architektonisch aufwertet. Eine neu gestaltete Treppe im Flur verbindet die beiden Geschossebenen. Im Dachgeschoss wurde ein freundlicher, offener Arbeits- und Spielbereich geschaffen, von dem drei weitere Zimmer sowie das Bad, ein separates WC und ein Abstellraum erschlossen werden.
Die energetische Sanierung erfolgte durch eine Kombination aus Außen- und Innendämmung. Die neuen Fenster und Türen sowie die vertikale Holzlattung sind in Lichtgrau gehalten und sorgen für ein zeitgemäßes, aber zurückhaltendes Erscheinungsbild. Die gewählten Klinkerriemchen greifen die Farbigkeit des Bestandsklinkers auf und fügen sich harmonisch in die umgebende Bebauung ein.
Eine neue Photovoltaikanlage auf dem Dach erzeugt Strom aus erneuerbaren Energien. Das vormals gemischte Heizsystem aus Kachelofen, Nachtspeicherheizungen und Gastherme wurde durch eine Luftwärmepumpe mit Flächenheizung ersetzt. Entstanden ist ein KfW-Effizienzhaus 85 EE (nach BEG GEG 2023).
Bauherr
privat
Wohnfläche
177 m²
Primärenergiebedarf
53 kWh/m²a
Anforderungswert KfW 85 EE (BEG GEG 2023)
83 kWh/m²a
Fotos: Olaf Mahlstedt
